Wohnquartiere
Baugebiete in Tittmoning und seinen Gemeindeteilen
Die behutsame, bedarfsgerechte Ausweisung von Baugebieten in allen Gemeindeteilen hat das Gesicht unserer familienfreundlichen Stadt geprägt. Derzeit stehen wir mit dem Wohnbau-Projekt "Am Bahnhof" vor der einmaligen Chance, unmittelbar vor den Toren der Altstadt ein attraktives Wohnquartier in traumhafter Lage entstehen zu lassen. Hier erfahren Sie mehr über Tittmonings Bau- und Wohngebiete der jüngeren Vergangenheit, der Gegenwart und der Zukunft.Baugebiet "Wohnhof II" im Hüttenthaler Feld - in Planung

ca. 1,5 km westlich der Altstadt von Tittmoning, am südlichen Rand des Baugebietes "Hüttenthaler Feld I"
Größe des Areals: ca. 7.800 m²
Nutzung: Wohngebiet
Nähere Informationen:
- Bebauungsplan Hüttenthaler Feld I Teil A
- Bebauungsplan Hüttenthaler Feld I Teil B
- Bebauungsplan Hüttenthaler Feld I (3. Änderung) dwg
- Bebauungsplan Hüttenthaler Feld I (3. Änderung) dfx
- Bebauungsplan Nr. 4.8 Hüttenthaler Feld I (3. Änderung) Teil A
- Bebauungplan Nr. 4.8 Hüttenthaler Feld I (3. Änderung) Teil B
- Stellplatzsatzung
- Lageplan dxf
- Luftbild

Grundstücke
Grundstück verfügbar ab sofort
In dem Wohngebiet am südlichen Rand des "Hüttenthaler Felds" entstehen vier Gebäude:- ein Gebäude (GR 420, zweigeschossig)
- ein Gebäude (GR 315, zweigeschossig)
- ein Gebäude (GR 325, dreigeschossig)
- ein Gebäude (GR 195, dreigeschossig)
und eine gemeinsame Tiefgarage
Baugebiet "Am Bahnhof" - Erschließung läuft

Stadt, zentral - westlich der B20/ Laufener Str., südlich der Traunsteiner Str., unmittelbar vor den Toren der Altstadt
Größe des Areals: rd. 27.800 m² (Realisierungsteil)
Nutzung: Allgemeines Wohngebiet und Urbanes Gebiet
Nähere Informationen:

Grundstücke
Grundstücke verfügbar ab sofort
Die Bebauung nach dem Architektenplan sieht sieben von der Struktur der Altstadt abgeleitete "Stadtbausteine" von je 20 mal 30 m und zwei "Wohnriegel" am nördlichen Rand des Baugebiets vor - insgesamt sollen hier ca. 160 WE entstehen.Darin sind verschiedene Wohnformen im verdichteten Geschosswohnungsbau als Eigentums- und Mietwohnungen möglich: von der klassischen Etagenwohnung über die reihenhausähnliche, mehrere Etagen umfassende Maisonette-Wohnung bis hin zu gemeinschaftlichen Wohnformen (Cluster-Wohnen), auch für ältere Menschen.
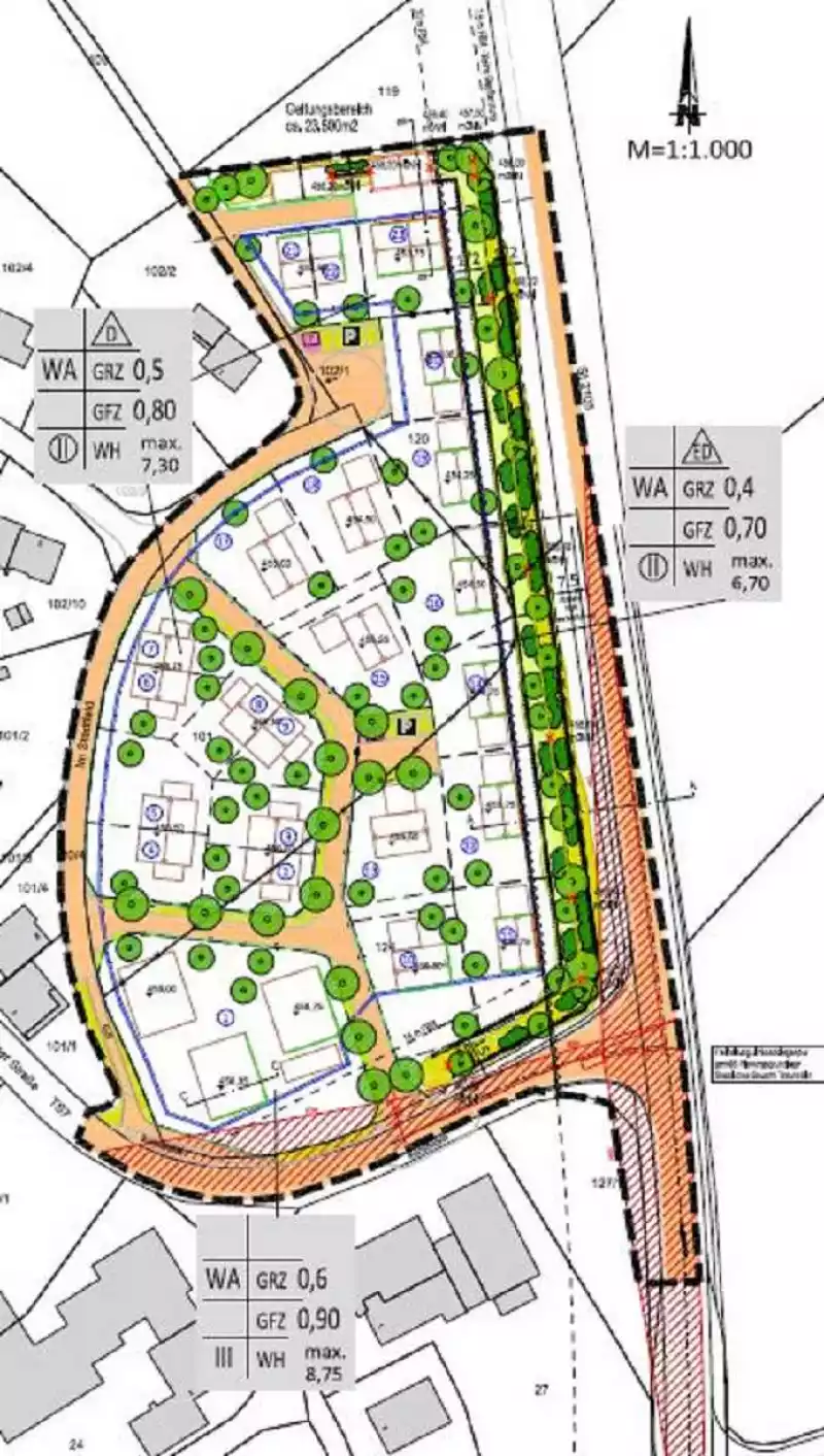
Baugebiet "Kay-Mitte"

am östlichen Ortsrand, westlich der St2105
Größe des Areals: rd. 23.500 m² (Geltungsbereich)
Nutzung: Allgemeines Wohngebiet

Grundstücke
noch Grundstücke verfügbar
In dem Allgemeinen Wohngebiet am östlichen Ortsrand entstehen auf 23 Parzellen11 Einfamilienhauser
12 Doppelhaushälften und
3 Mehrfamilienhäuser.
Baugebiet "Unteres Burgfeld III" - abgeschlossen

Siedlung "Unteres Burgfeld"
östlich der B20 südlich der Altstadt
Größe Areal: 3.955 m²
Nutzung: Allgemeines Wohngebiet
Nähere Informationen

Grundstücke
Mehrfamilienhäuser
Hier entstehen 4 Mehrfamilienhäuser mit insgesamt ca. 35 Wohneinheiten.Baugebiet "Weilham-Nord" - abgeschlossen

nördlicher Ortsteil
Größe des Areals: 6.980 m²
Nutzung: Dorfgebiet

Grundstücke
Ein- und Zweifamilienhäuser
Hier entstanden 4 Ein-/ Zweifamilienhäuser.Baugebiet "Asten-Süd" - abgeschlossen

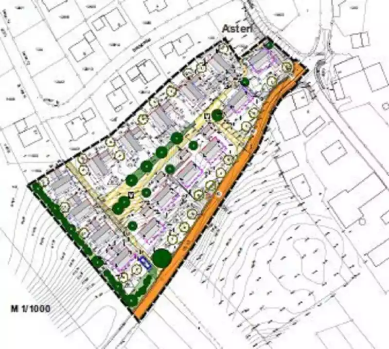
im südwestlichen Bereich
Größe Areal: rd. 14.700 m² (Geltungsbereich)
Nutzung: Allgemeines Wohngebiet
Nähere Informationen

Grundstücke
Derzeit keine Grundstücke mehr verfügbar
Im südwestlichen Bereich von Asten wurde im Anschluss an die bestehende Wohnbebauung dringend benötigter Wohnraum geschaffen:15 Bauparzellen mit kleinteiliger Einfamilienhausbebauung.
Baugebiet „Pillerfeld" - abgeschlossen

östlich der B20 an der Ortseinfahrt von Süden kommend
Größe des Areals: 30.000 m²
Nutzung: Mischgebiet und Allgemeines Wohngebiet

Grundstücke
Derzeit keine Grundstücke mehr verfügbar
Im Süden Tittmonings entstand eine neue Wohnsiedlung:3 Grundstücke Mischgebiet und 52 Bauparzellen für Ein- und Zweifamilienhäuser, Doppelhaushälften und Reihenhäuser.
Gelungene Ortsentwicklung
Ausgezeichnet mit dem Deutschen Städtebaupreis
Stolz sind wir auf das 1998 mit dem Deutschen Städtebaupreis (Walter-Hesselbach-Preis der BfG Bank AG) ausgezeichnete Modellprojekt Baugebiet "Hüttenthaler Feld", das nach den Plänen des Planungsbüros Landbrecht + Stadler seit 1992 in drei Bauabschnitten realisiert wurde. Seine Entwicklung kam 2020 mit Vollendung des dritten Bauabschnitts zum Abschluss. Aber auch die Baugebiete Pillerfeld und Asten-Süd können als gelungene Beispiele einer behutsamen Ortsentwicklung gelten, die in Kay mit dem Wohnbaugebiets "Kay-Mitte" fortgeführt wird.Baugebiet „Hüttenthaler Feld" - abgeschlossen

ca. 1 km nordwestlich von Tittmoning, zwischen den Staatsstraßen St 2105 und St 2106
Nutzung: Wohngebiet
Derzeit verfügbare Grundstücke: Hüttenthaler Feld I (3. Änderung), d.i. Wohnhof 2